8 (925) 390-00-41 / 8 (926) 358-96-81. (для юрид. лиц +10%,только без ндс).
Розничный магазин: ТЦ «Гвоздь»,г.Москва.Волоколамское ш.103. 2-й этаж.Пав.11 Гольфстрим. График работы. Понедельник-Среда с 9-18.Четверг с 9-15.Пятница,Суббота,Воскресенье--ВЫХОДНЫЕ ДНИ.

КАТАЛОГ
  • Гольфстрим
  • Бойлеры косвенного нагрева
  • BAXI бойлеры (эмаль)
  • НАПОЛЬНЫЕ BAXI (Китай,эмаль,5 лет гарантии)
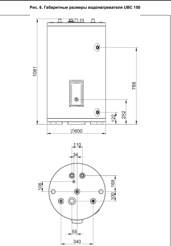
  • Комбинированный бойлер Baxi UBC 150 (ВЕРХНИЕ ПОДКЛЮЧЕНИЯ.с тэном 3кВт.мв/тепл.арт.CNEWT150S01)

    Комбинированный бойлер Baxi UBC 150 (ВЕРХНИЕ ПОДКЛЮЧЕНИЯ.с тэном 3кВт.мв/тепл.арт.CNEWT150S01)

    56400 руб.

    Описание

    Сделано в Китае.

    Гарантия 5 лет.

    Эмалированный.

    Мощность змеевик 24 кВт, электрич.тэн 3 кВт.

     

    Внешние накопительные бойлеры серии UBС — это высокоэффективные эмалированные стальные водонагреватели емкостью от 100 до 500 литров. Стенки и змеевик бойлера покрыты запатентованной высококачественной эмалью. Для дополнительной защиты от коррозии бойлеры оснащены магниевыми анодами. Благодаря изоляции из пенополиуретана толщиной от 40 до 50 мм (в зависимости от емкости) потери тепла минимальны. Широкий модельный ряд дает возможность выбрать бойлер, оптимально подходящий для вашего комфорта.

    Тип бойлера: эмалированная сталь

    Тип установки: напольная

    Конструктивные особенности и преимущества:

    Материал бака и змеевика: углеродистая сталь

    Внутреннее покрытие бака: запатентованная эмаль

    Двустороннее эмалирование змеевика

    Твердая облицовка с покрытием белой эмалью

    Две гильзы с фиксаторами для датчика температуры бойлера

    Электрический ТЭН из нержавеющей стали AISI 304L мощностью 3 кВт во всех моделях

    Два предохранительных клапана и кран слива в комплекте

    Широкий модельный ряд:

    Модели с боковом подключением от 100 до 500 л

    Модель 150 литров с верхним подключением

    Модели как с одним, так и с двумя змеевиками (DC)

    Высокая энергоэффективность

    Высокопроизводительный змеевик мощностью от 24 до 40 кВт (в зависимости от модели)

    Теплоизоляция из вспененного пенополиуретана толщиной 40 или 50 мм (в зависимости от модели)

    Второй змеевик в верхней части (у моделей UBC DC)

    Надежность и безопасность:

    Сбросной предохранительный клапан с функцией обратного клапана на входе холодной воды

    Комбинированный предохранительный клапан по температуре и давлению

    Рабочий термостат и предохранительный термостат от перегрева для контроля за работой электрического нагревательного элемента (ТЭНа)

    Магниевый анод увеличенного размера для дополнительной защиты от коррозии*

    Высококачественное порошковое эмалирование запатентованным составом**

    *У всех моделей от 250 литров и у моделей с двумя змеевиками установлены два магниевых анода

    **Эмалированы следующие компоненты водонагревателя: внутренний бак, змеевик, нагревательный элемент. Эмалирование нагревательного элемента (ТЭНа), выполненного из нержавеющей стали, максимально уменьшает скорость образования накипи на гладкой поверхности ТЭНа. Двустороннее эмалирование змеевика обеспечивает высокую теплопередачу и высокое качество нагреваемой воды (без следов ржавчины)

     

     

     

     

     

    Внешние накопительные бойлеры серии UBС — это высокоэффективные эмалированные стальные водонагреватели емкостью от 100 до 500 литров. Стенки и змеевик бойлера покрыты запатентованной высококачественной эмалью. Для дополнительной защиты от коррозии бойлеры оснащены магниевыми анодами. Благодаря изоляции из пенополиуретана толщиной от 40 до 50 мм (в зависимости от емкости) потери тепла минимальны. Широкий модельный ряд дает возможность выбрать бойлер, оптимально подходящий для вашего комфорта.

    Тип бойлера: эмалированная стальТип установки: напольная

    Конструктивные особенности и преимущества:

    • Материал бака и змеевика: углеродистая сталь
    • Внутреннее покрытие бака: запатентованная эмаль
    • Двустороннее эмалирование змеевика
    • Твердая облицовка с покрытием белой эмалью
    • Две гильзы с фиксаторами для датчика температуры бойлера
    • Электрический ТЭН из нержавеющей стали AISI 304L мощностью 3 кВт во всех моделях
    • Два предохранительных клапана и кран слива в комплекте

    Широкий модельный ряд:

    • Модели с боковом подключением от 100 до 500 л
    • Модель 150 литров с верхним подключением
    • Модели как с одним, так и с двумя змеевиками (DC)
     

    Высокая энергоэффективность

    • Высокопроизводительный змеевик мощностью от 24 до 40 кВт (в зависимости от модели)
    • Теплоизоляция из вспененного пенополиуретана толщиной 40 или 50 мм (в зависимости от модели)
    • Второй змеевик в верхней части (у моделей UBC DC)

    Надежность и безопасность:

    • Сбросной предохранительный клапан с функцией обратного клапана на входе холодной воды
    • Комбинированный предохранительный клапан по температуре и давлению
    • Рабочий термостат и предохранительный термостат от перегрева для контроля за работой электрического нагревательного элемента (ТЭНа)
    • Магниевый анод увеличенного размера для дополнительной защиты от коррозии*
    • Высококачественное порошковое эмалирование запатентованным составом**

    *У всех моделей от 250 литров и у моделей с двумя змеевиками установлены два магниевых анода
    **Эмалированы следующие компоненты водонагревателя: внутренний бак, змеевик, нагревательный элемент. Эмалирование нагревательного элемента (ТЭНа), выполненного из нержавеющей стали, максимально уменьшает скорость образования накипи на гладкой поверхности ТЭНа. Двустороннее эмалирование змеевика обеспечивает высокую теплопередачу и высокое качество нагреваемой воды (без следов ржавчины)

     
     
     

     


    © ИП Потерухин Д.Е.
    Яндекс.Метрика
    ТЦ «Гвоздь», Волоколамское ш. д.103.«Приведённые цены не являются публичной офертой.»
    Телефон: 8 (925) 390-00-41 / 8 (926) 358-96-81. (для юрид. лиц +10%,только без ндс).
    E-mail: 79263589681@yandex.ru
    Разработка сайта: