Сделано в Италии.
Гарантия 2 года.
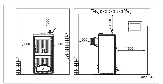
Твердотопливный котел Sime (Сайм) SOLIDA 3 EV — это современное отопительное оборудование, которое для выработки тепла использует твердое топливо (дрова или уголь). Данный агрегат полностью энергонезависимый, что позволяет не обращать внимания на перепады напряжения в электросети или беспокоиться о создании благоприятных климатических условий в случае отсутствия электричества.
Для эффективного обогрева жилых участков любой формы идеально подходят высокомощные твердотопливные котлы Sime серии SOLIDA EV. Все представленные модели были изготовлены из качественного и особопрочного чугуна, а также оборудованы удобной системой управления, что обеспечило высокую надежность котлов при работе в различных условиях и положительно повлияло на показатели их производительности.
Характеристики:
| Артикул товара: | 8111900 |
| Бренд товара: | Sime |
| Серия товара: | Solida |
| Диаметр дымохода: | 150 мм |
| Диаметр резьбового соединения: | 2 |
| Длина палена: | 346 мм |
| Материал котла: | Чугун |
| Max отапливаемая площадь, м2: | 230 |
| Мощность, кВт: | 23 кВт |
| Топливо: | Дрова; Уголь; Твердое топливо |
| Размеры ВхШхГ: | 1001х500х425 мм |
| Масса, кг: | 226 |
| Страна производитель: | Италия |
| Гарантия: | 2 года |


